Скачать ГОСТ Р 8.726-2010 Государственная система обеспечения единства измерений. Датчики весоизмерительные. Общие технические требования. Методы испытанийДата актуализации: 01.01.2021
|
| Обозначение: | ГОСТ Р 8.726-2010 |
| Обозначение англ: | GOST R 8.726-2010 |
| Статус: | отменен |
| Название рус.: | Государственная система обеспечения единства измерений. Датчики весоизмерительные. Общие технические требования. Методы испытаний |
| Название англ.: | State system for ensuring the uniformity of measurements. Load cells. Metrological and technical requirements. Tests |
| Дата добавления в базу: | 01.09.2013 |
| Дата актуализации: | 01.01.2021 |
| Дата введения: | 01.07.2012 |
| Дата окончания срока действия: | 01.07.2015 |
| Область применения: | Стандарт определяет основные метрологические статические характеристики и статические методики испытаний для весоизмерительных датчиков, применяемых при измерении массы. Стандарт предназначен для обеспечения организаций единообразными средствами для определения метрологических характеристик весоизмерительных датчиков, применяемых в измерительных приборах, которые являются объектами метрологического контроля. В стандарте составляющие погрешности весоизмерительного датчика следует рассматривать в совокупности, применяя технические характеристики весоизмерительного датчика в пределах допускаемой погрешности. Стандарт предназначен не для учета отдельных составляющих погрешности таких характеристик, как нелинейность, гистерезис и т. Д., а для рассмотрения общей суммарной погрешности, допускаемой для весоизмерительного датчика. Использование кривой погрешности позволяет уравновесить отдельные составляющие суммарной погрешности измерений. |
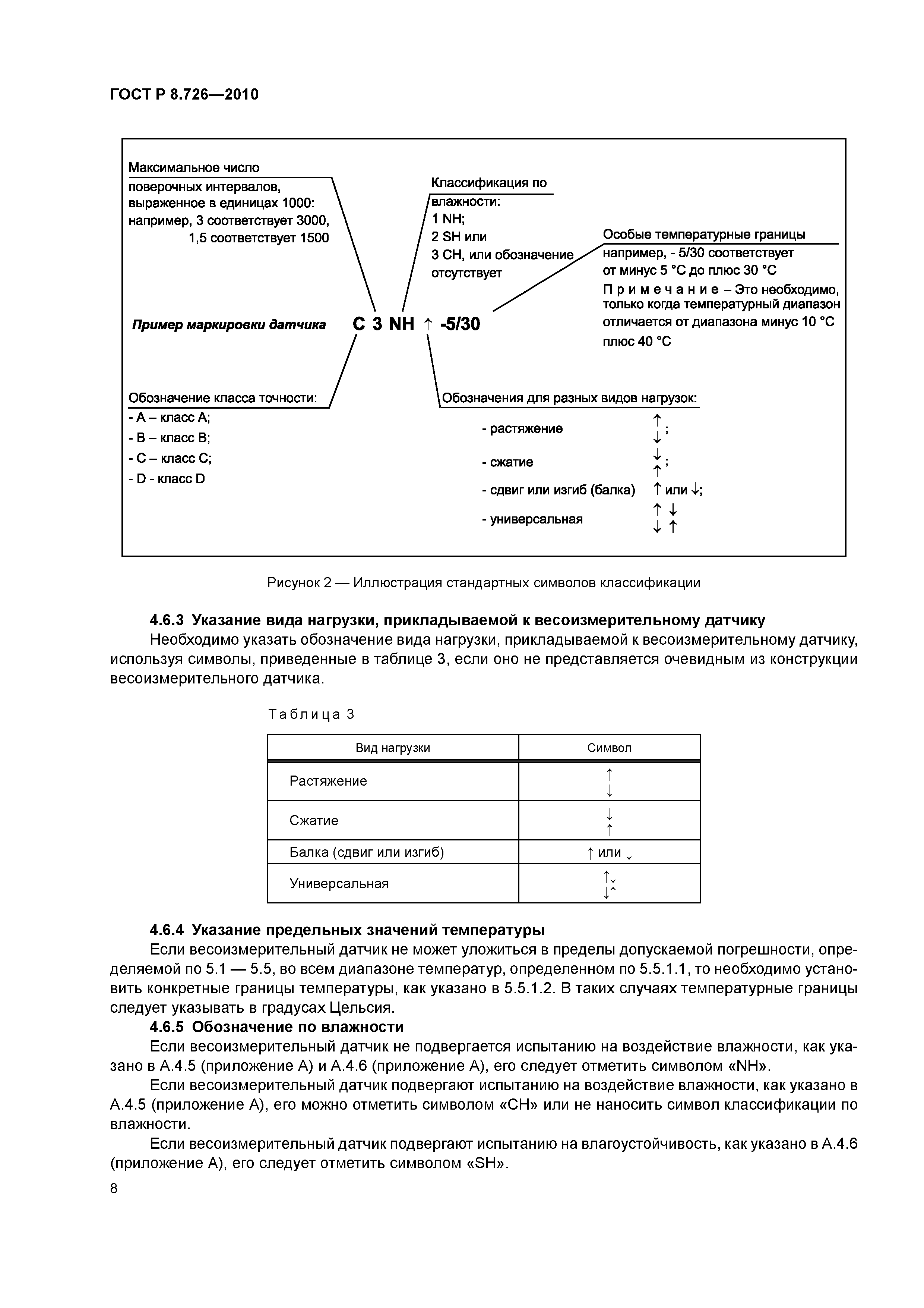
| Оглавление: | 1 Область применения 2 Нормативные ссылки 3 Термины, определения и обозначения 3.1 Термины и определения 3.2 Обозначения 4 Метрологические требования 4.1 Классификация весоизмерительных датчиков 4.2 Классы точности 4.3 Максимальное число поверочных интервалов 4.4 Минимальный поверочный интервал весоизмерительного датчика 4.5 Дополнительные классификации 4.6 Полная маркировка весоизмерительных датчиков 4.7 Представление информации 5 Пределы допускаемой погрешности весоизмерительных датчиков 5.1 Пределы допускаемой погрешности для каждого класса точности 5.2 Правила определения погрешностей 5.3 Допускаемые расхождения между результатами 5.4 Составляющая погрешности, связанная со сходимостью 5.5 Влияющие величины 5.6 Измерительные эталоны 6 Требования для весоизмерительных датчиков с электроникой 6.1 Общие требования 6.2 Действие при промахах 6.3 Функциональные требования 6.4 Дополнительные испытания 7 Метрологический контроль 7.1 Обязательность официальных метрологических проверок 7.2 Требования к испытаниям 7.3 Выбор весоизмерительных датчиков в пределах семейства Приложение А (обязательное) Процедуры испытаний для оценивания образца Приложение Б (обязательное) Форма протокола испытания - общие сведения Приложение В (справочное) Методика поверки Приложение Г (справочное) Выбор весоизмерительного(ых) датчика(ов) для испытания - практический пример Приложение Д (обязательное) Формат отчета об испытаниях - формы Библиография |
| Разработан: | ФГУП ВНИИМ им. Д. И. Менделеева |
| Утверждён: | 21.12.2010 Федеральное агентство по техническому регулированию и метрологии (842-ст) |
| Издан: | Стандартинформ (2012 г. ) |
| Нормативные ссылки: |
|












































































